长春【锦溢方塘里】7月房价_锦溢方塘里_售楼处电话_价格_在售户型_楼盘详情
扫描到手机,新闻随时看
扫一扫,用手机看文章
更加方便分享给朋友
长春【锦溢·方塘里】售楼处电话 0431-81809921 【营销中心】
欢迎来电咨询|最新房价|在售户型|购房优惠|楼盘情况|免费看房车接送|
温馨提示:绝不收取任何费用!请提前1小时预约看房登记,以免带来不好的体验
[ 项目简介 ]
锦溢·方塘里,禀赋净月自然厚土构建更优城市资源 ,立著时代发展主轴南临河街,占位轻轨之上,融合当代院筑美好,借之于醇熟区位、轨交、文脉等天赋,占位城市教育+生活中心,以大家之姿,匠造时代主轴的归心院著,以现房之姿,敬献全新舒居。
项目名称:锦溢·方塘里
项目位置:净月区天蓝路与临河街交会
容 积 率:1.99
绿 化 率:35%
社区业态:共11栋 13-18F 小高层
电梯分布:一梯两户
交付标准:毛坯
园区面积:86/104/121/139㎡
首开楼栋:7号楼/10号楼
首开均价:11500/㎡
首付政策:可12%首付
交房时间:25年4月末7号
核心卖点
现房、交房时间优势,即买即住,无后顾之忧;
教育配套、慧泽学校15年连读,南湖实验;
位置优势,楼下即轻轨4号线、临河街、77路;
产品内部全面升级,从园林及小品摆件、健身器械。

【 方塘之位 | 启鉴城市发展 】
锦溢·方塘里立于净月南临河街,时代发展主轴,板块兼具醇熟商圈+核心居住区属性,尽占区域发展红利,置业热土。
【方塘之源 | 至优自然归心】
锦溢·方塘里紧邻伊通河源百万方湿地公园(在建),打造滨水文化休闲体验区,延绵城市百年文明,承袭天赋水脉,精筑气韵风华。
【方塘之境 | 楼下即为轻轨站】
锦溢·方塘里,轨交立体共构,一轴线,三换乘,出门即达轻轨四号线天普路站,换乘6/3/2号线,便捷轨交出行,城市繁华迅达尊享。
【方塘之樾|映鉴书香润染】锦溢·方塘里,起步即重点,家门口见成长,近邻慧泽学校、南湖实验中学。
方塘之康 | 医疗守护健康
锦溢·方塘里旁新建首都医科大学附属北京安贞医院吉林医院,北京安贞医院是一所集医疗、教学、科研、预防、国际交流五位一体,以治疗心肺血管疾病为重点的三级甲等综合性医院,在全国心血管领域处于领军地位,专科特色突出,多学科综合实力强劲,在国内外享有盛誉。医院的落位长春,为春城人民守护健康。
【方塘之景|徜徉书香雅园】
锦溢·方塘里,以浓郁的书香文化串联景观节点,将纸柔美的线型、竹简竹片的形式、印章的形制构成文化延续,演绎书香雅苑的文化精髓;塑造艺术草坪空间/私享会客厅/户外课堂/林下健身/漫休闲体验/全龄活动中心等多功能场地。
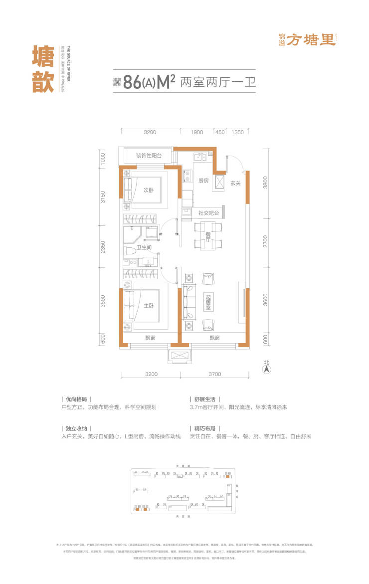
【户型分布】86㎡/104㎡/121㎡/139㎡

【户型介绍】
【建面约86㎡(A) 】小规模投资即入住南临河街!入户玄关设计,灵动收纳空间,LDK一体化设计,定制化飘窗空间,首置必备。
【建面约104㎡ 】 明星三房样板 同等面积功能更优!南向三面宽+个性化飘窗空间,采光更好,三室两厅两卫+主卧套房(含卫生间),尊享从容,玄关系统+家政间系统,收纳加倍。
【建面约121㎡ 】 改善家庭样板 同等配置 空间更阔绰!全明格局+主卧贯通式设计(南北通透设计),舒适从容;四大收纳系统,储物更强(玄关、走廊两大储物、主卧衣帽间、储藏室)。
【建面约139㎡ 】 品质奢居样板 同等格局 尺度更优!
平墅,IMAX宽厅,6.3m客厅开间,12.7m南向三面宽,宽幕生活。
长春【锦溢·方塘里】售楼处电话 0431-81809921 【营销中心】
欢迎来电咨询|最新房价|在售户型|购房优惠|楼盘情况|免费看房车接送|
温馨提示:绝不收取任何费用!请提前1小时预约看房登记,以免带来不好的体验
声明:本文由入驻焦点开放平台的作者撰写,除焦点官方账号外,观点仅代表作者本人,不代表焦点立场。
