长春_中顺碧水园_楼盘首页_中顺碧水园_售楼处电话_价格_户型_楼盘详情
扫描到手机,新闻随时看
扫一扫,用手机看文章
更加方便分享给朋友
长春【中顺碧水园】 售楼处电话 0431-81809921 【营销中心】
欢迎来电咨询〢尊享内部优惠服务〢免费看房车接送〢
长春购房政策-贷款政策-最新价格-剩余房源-周边配套-项目答疑-楼盘情况
【中顺碧水园】 纯洋房社区
【中顺碧水园】项目位置:南关区锦湖大路与芳草街交汇
【中顺碧水园】在售项目信息:
在售楼栋:8层顶:2#5#9#11#15#16#18#
11层顶:6#7#12#13#17#
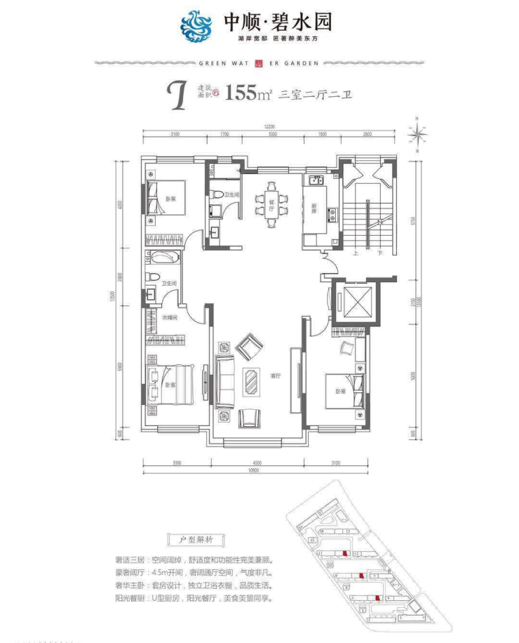
在售面积:99㎡,108㎡,122㎡,129㎡,143㎡,149㎡,155㎡,160㎡,180㎡,190㎡
均价:14000-16000元/㎡
交付校准:现房☀ 交房时间:现房
一梯一户(143.149.180.190)
一梯两户(99.108.122.129)
容积率:1.49%
绿化率:31.5%
得房率:80%
装修标准:(3000以上)
物业费:3.6元/平(包含电梯费)
物业公司:中顺物业(三个核心理念:一站式服务,主动超前性服务,创造性服务)
地下车位:1:1.2
户型图





样板间展示
园区景观
长春【中顺碧水园】 售楼处电话 0431-81809921 【营销中心】
欢迎来电咨询〢尊享内部优惠服务〢免费看房车接送〢
长春购房政策-贷款政策-最新价格-剩余房源-周边配套-项目答疑-楼盘情况
声明:本文由入驻焦点开放平台的作者撰写,除焦点官方账号外,观点仅代表作者本人,不代表焦点立场。
