长春别墅【檀墅】售楼处电话【檀墅】2026年春节特惠_户型_配套
扫描到手机,新闻随时看
扫一扫,用手机看文章
更加方便分享给朋友
长春【檀墅】售楼处电话 0431-81809921 【营销中心】
欢迎来电咨询|最新房价|在售户型|购房优惠|楼盘情况|免费看房车接送|
温馨提示:绝不收取任何费用!请提前1小时预约看房登记,以免带来不好的体验
【檀墅】别墅大师的独栋藏品——可拓型约550-800㎡ 新品现墅 迭代面市
(注意:看样板间需要验资50万)
【交通配套】项目北邻超达大路、东邻超胜街、西邻超凡大街、南侧为金宇大路,享受地铁5号线(在建中)、地铁6号线 双轨交会。
【生态配套】永春河公园、八一公园、幸福公园、光明公园、友谊公园等。
【商业配套】欧亚卖场、欧亚广场、居然世界里、栖乐荟、活力汇等。
【教育配套】益田国际双语幼儿园、省二实验中学、北京师范附属学校、东师慧仁学校等。
【医疗配套】吉林省第二人民医院、国金医院等。
【檀墅】总体情况
楼盘地址:长春高新区超胜街555号
总占地面积:
总户数:约168户
容积率:0.54
绿化率:40%
物业类别:独栋别墅
装修状况:毛坯
交房情况:现房
开发商:长春金越房地产开发有限公司
物业公司:万科物业
物业费:5.8元/平
【檀墅】简介
檀墅是金越地产于高新区打造的高端住宅项目,项目曾获全国绿色生态住宅示范区、“中国名盘”、长春年度优秀楼盘、中国房地产东北区品牌价值TOP10等奖项。
檀墅整体占地6.36万㎡,容积率约0.54,绿化率高达40%,是市区内罕有的低密别墅住区。
五期共规划93栋独栋别墅(装修后面积约550-800㎡)、27套自持内花园商业(使用面积约600-800㎡)。独栋别墅南北双院贯通,独门独院;商业产品私享内花园,坐拥墅区优质客群。
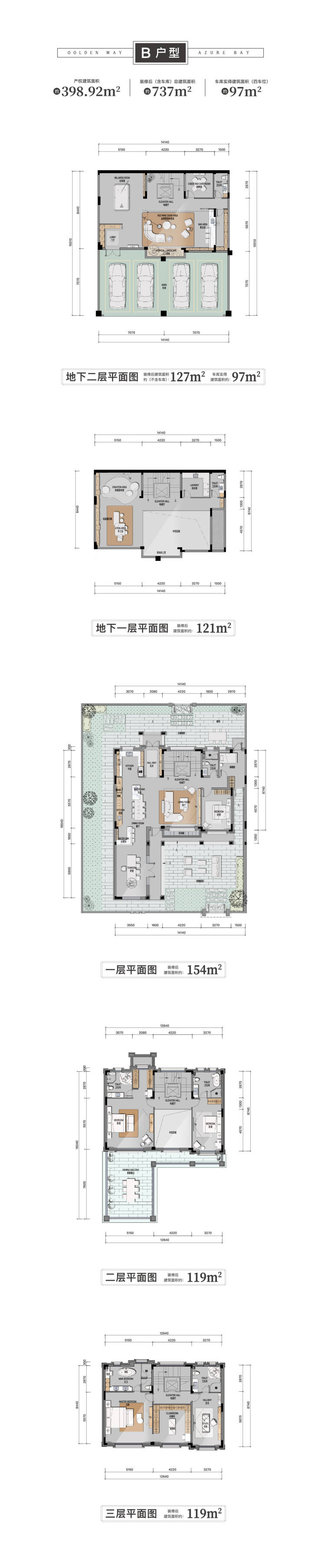
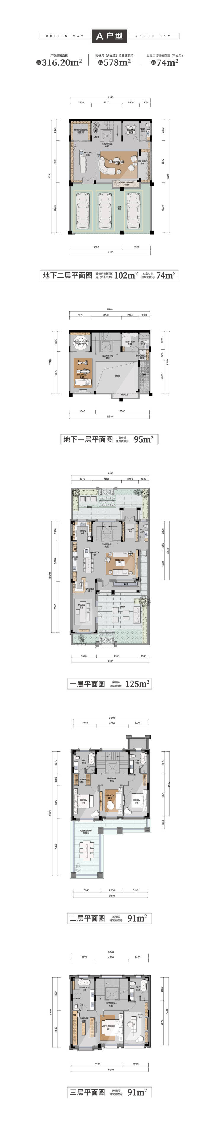
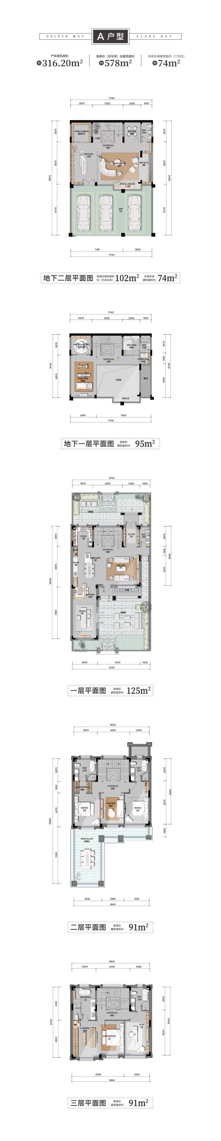
独栋别墅信息:
产权面积为300平到430平,分为A和B两种户型(花园120-240平)
?户型为小户型产权面积295平到340平(改造后可达550平-600平),价格区间600万到800万
?户型为大户型产权面积395平到430平(改造后面积可达680平到800平)价格区间900万到980万。
——————————————
完善配套尽享醇熟生活
四园环绕:与八一公园、永春河公园、幸福公园、芳草公园组成的城市绿地仅一街之隔
双轨交通:享受地铁5号线(在建中)、地铁6号线,交通便捷
多维商圈:临近欧亚卖场、欧亚汇集、居然世界里、栖乐荟、活力汇、力旺广场等大型商业配套
名校汇聚:享东师慧仁9年义务教育学区,临近长春高新二实验学校、吉林省第二实验学校、北京师大附属学校
三甲医院:吉林省第二人民医院、国金医院等三甲医院,为健康护航
长春主城唯一独栋别墅
随着城市的快速发展,城芯土地愈发珍贵,限墅令的颁布,让城市别墅更加稀缺,檀墅可以说是,城市中芯地段唯一仅有的千万级城市独栋别墅,献给长春顶尖人群的置业终章产品 。
双花园:户户奢享南北双庭院奢阔园境,私家独享,有天有地

高新门户地段绝无仅有
项目坐落于高新区核心生态板块-永春河板块,位于链接南部新城城市副中心黄金轴线上,是配套设施发展的核心区域,也是城市高净值人群居住首选。
双主卧:双主卧套房设计,私密空间人性化考量,各有天地

双餐厅:可应用多种用餐场景,多人聚餐,两人简餐,应对自如
现房檀墅户型独一无二
别墅样板间效果图
负首层效果图(层高5.6米)
中西餐厨、茶室效果图
首层效果图(超过14米面宽,首层6.25米高挑空)
顶层主卧套房效果图(开间9.3米)
长春【檀墅】售楼处电话 0431-81809921 【中介勿扰】
欢迎来电咨询|最新房价|在售户型|购房优惠|楼盘情况|免费看房车接送|
温馨提示:绝不收取任何费用!请提前1小时预约看房登记,以免带来不好的体验
声明:本文由入驻焦点开放平台的作者撰写,除焦点官方账号外,观点仅代表作者本人,不代表焦点立场。
