长春2025年新房@宝裕悦兰湾@售楼处电话@宝裕悦兰湾@价格_在售户型_楼盘详情
扫描到手机,新闻随时看
扫一扫,用手机看文章
更加方便分享给朋友
长春【宝裕·悦兰湾】售楼处电话 0431-81809921 【营销中心】
欢迎来电咨询|最新房价|在售户型|购房优惠|楼盘情况|免费看房车接送|
温馨提示:绝不收取任何费用!请提前1小时预约看房登记,以免带来不好的体验

项目简介:宝裕·悦兰湾项目地处于长春市南关区,位于南关区、净月区双区交汇,尊享双区配套资源。
3期悦兰湾·福祉源项目的方位是北临福祉大路,东临项目一期,西至河堤路,南侧为伊通河支流,沙盘的右上方是地铁6号线的路径,正好串联福祉大路,与地铁的直线距离依然清晰可见。
项目总占地面积约9.1万㎡,总建筑面积约27.6万㎡,容积率约2.4,绿化率39.68%,地下停车位共计1150个。
园区内分布了17栋住宅,共计2244户。以中间的中轴作为分割线,右侧的8栋楼是3期 A 地块,属于我们今年内陆续面市的产品。
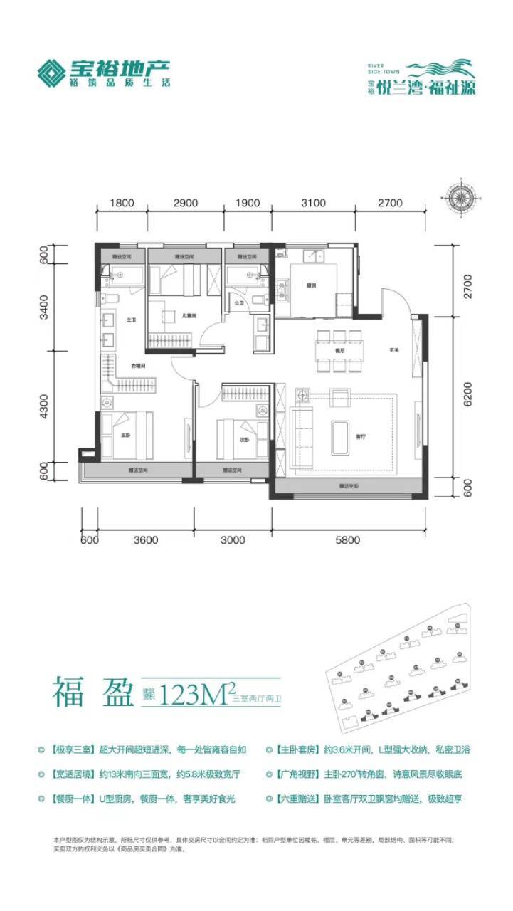
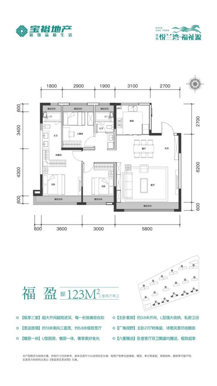
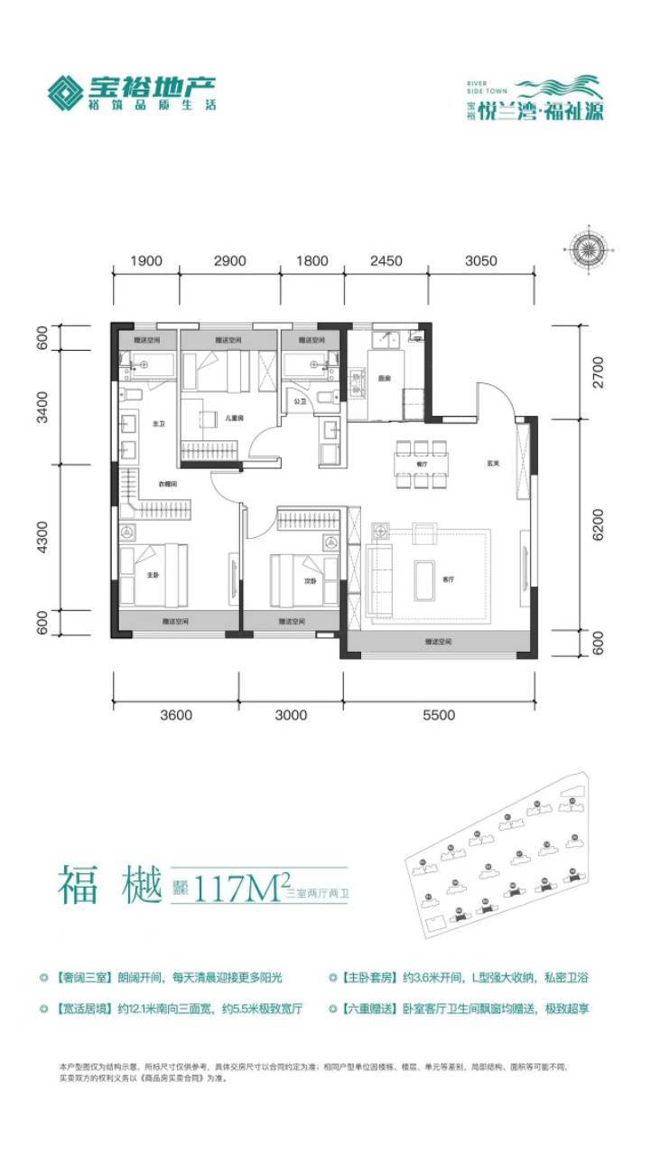
高层A1-A7栋的面积包括85㎡2的大两房产品、95-113m的精致三房产品,小高层A8-A9的面积约117-123m2的舒阔三房产品。其中两房产品的总量大概占比57%,精致三房占比28%,舒阔三房占比15%。
项目卖点:
①临河街板块 销冠项目 价格合适性价比高
②坐拥双轨交通 出行便利 出门即是轻轨
③一街三大商 一河三公园
④落地窗(离地面25厘米),把山转角窗
配套:一街三大商(麦德龙、迪卡侬、中东港)一河三公园(伊通河,项目东侧景观示范区已投入使用,西侧宝裕假日公园已投入使用南侧伊通河公园)一街双轨交(轻轨4号线地铁6号线已正式通车)交汇换乘站“福祉大路站”距离项目约800米南关三实验已开学。
医疗:吉润医院(原吉大医院净月分院)(吉林大学白求恩第一医院委托经营管理)位于长春净月高新区新城大街与飞虹路交汇处,总占地面积10万平方米,总建筑面积31.31万平方米,总投资45.57亿元,2022年10月1000张床位一期投入运营,2023年10月二期1520张床位投入运营。以吉大一院现有重点科室和医疗骨干为核心,设置临床科室54个,3000余名医护人员。
教育:园区南侧南关区3实验,计划开/竣工日期:现在已开工24年招生,54个教学班的九年一贯制学校(小学36个教学班、初中18个教学班),总占地面积79989平方米,总建筑面积57517.7平方米,其中地上建筑面积52020.7平方米,地下建筑面积5497平方米。工程投资金额:31600万元,其中土建投资额为23000万元。
宝裕悦兰湾户型图
长春【宝裕·悦兰湾】售楼处电话 0431-81809921 【营销中心】
欢迎来电咨询|最新房价|在售户型|购房优惠|楼盘情况|免费看房车接送|
温馨提示:绝不收取任何费用!请提前1小时预约看房登记,以免带来不好的体验
声明:本文由入驻焦点开放平台的作者撰写,除焦点官方账号外,观点仅代表作者本人,不代表焦点立场。
