长春别墅推荐_面积180平_总价100万起_赠送150平【久和合院·湖园】预约看房
扫描到手机,新闻随时看
扫一扫,用手机看文章
更加方便分享给朋友
长春【久和合院·湖园】 售楼部电话: 0431-85188885 【营销中心】
____欢迎来电咨询〢尊享内部优惠服务〢免费看房车接送〢
温馨提示:绝不收取任何费用,请提前1小时预约看房,以免带来不好的看房体验
————————————————————
【久和合院·湖园】楼盘信息
开发商:长春市久和房地产开发有限公司
物业:自持物业
物业费:未定产品:叠拼 层数:4
首付比例:首套15%
贷款:商贷
绿化: 30%:容积率:1.17占地面积:7.4万平方米
建筑面积:10万平方米
交房时间:2026年5月末产权:70年
【久和合院·湖园】销售政策
1.正常全款
2.正常按揭首付15%
3.首付分期首付5%剩余首付三个月一期,交房之前还清
目前在售楼栋
17栋、18栋、21栋、22栋、25栋、26栋
项目卖点:
1.长春北城唯一四代半住宅
2.下叠赠送花园露台、车库、车位等超大面积,上叠赠送露台、车库、车位以及超多创意空间
3.别墅级标准教材,欧耐铝包木窗材,朗意加三七钢木装甲门,西奥电梯
4.4层纯叠拼带电梯产品
5.超低容积率,超大栋距,超高绿化率
6.智能化园区:园区拥有立林智能人脸识别,二维码,车牌识别等入园系统,全区入户门指纹密码锁,社区商超,免费送货上门
周边配套
1、便捷交通:中轴主干路德隆大街黄金段位,连通长春西四环,合烧快速路、185公交等畅享便捷交通
2、坐拥双公园:南侧69万㎡青年渠生态景观长廊(合隆的南湖)北侧卧龙湖湿地公园天然负氧离子舒适又健康
3、成熟配套:万隆广场,欧亚超市、肯德基、万隆集市、自带商业金街等多元业态,满足生活所需
4、高品质生态园区,绿化率30%以上,超大楼间距22.6米
5、教育:坐拥全临全龄教育,合隆第二中小学,瀚文综合高中
6、车程3分钟即可到达三甲级中日联谊协作医院
————————————————————
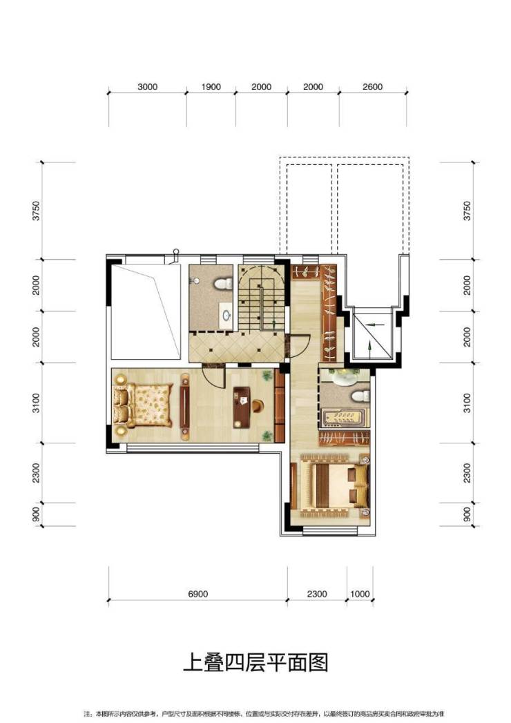
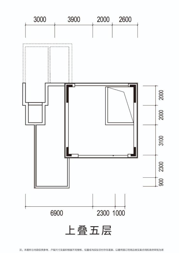
【久和合院·湖园】户型介绍:
长春【久和合院·湖园】 售楼部电话: 0431-85188885 【营销中心】
____欢迎来电咨询〢尊享内部优惠服务〢免费看房车接送〢
温馨提示:绝不收取任何费用,请提前1小时预约看房,以免带来不好的看房体验
声明:本文由入驻焦点开放平台的作者撰写,除焦点官方账号外,观点仅代表作者本人,不代表焦点立场。
